COMMERCIAL

Picnic

Seattle, Washington

Link to press here

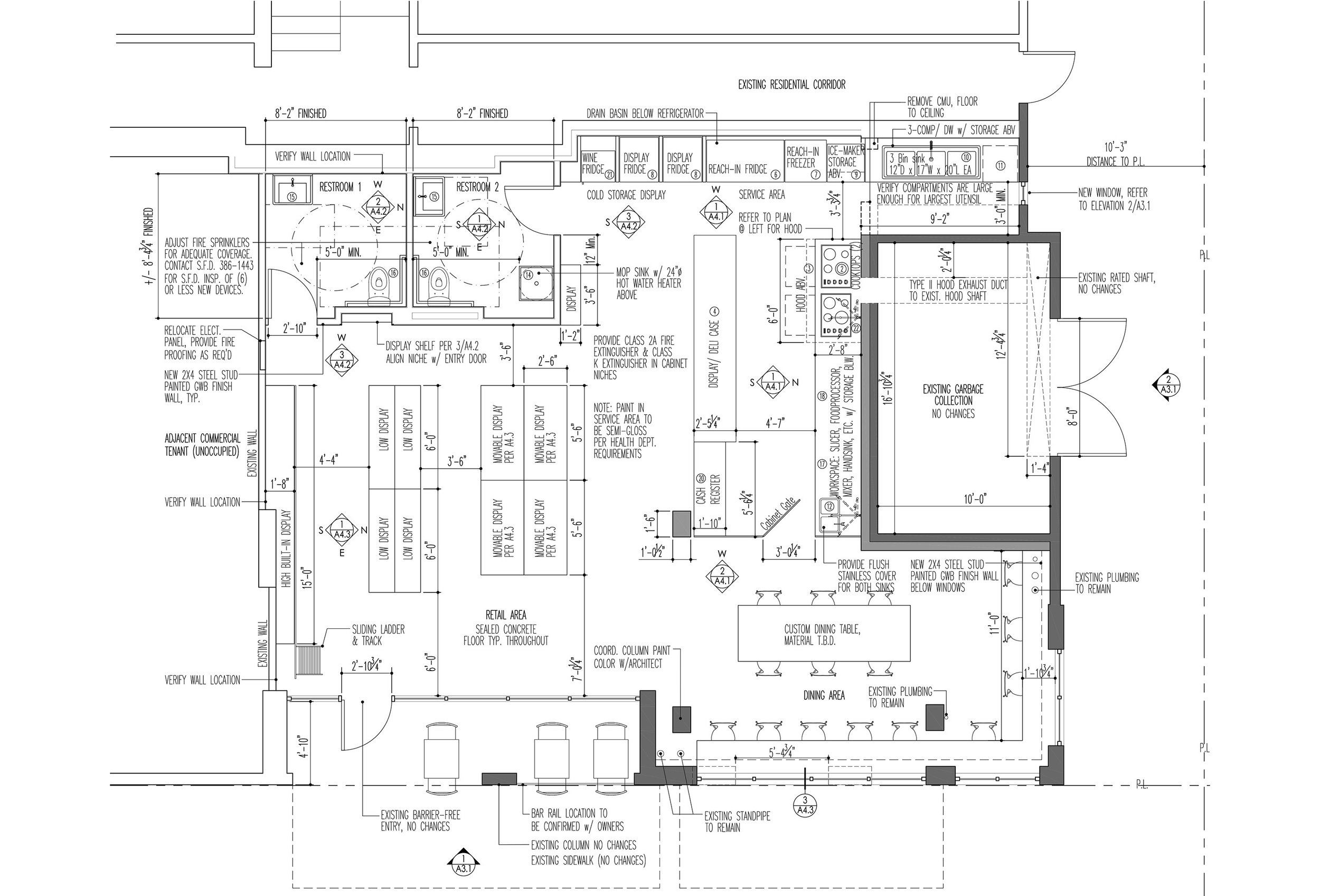
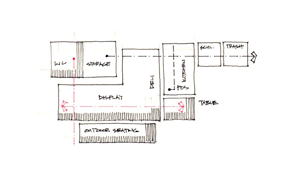
This project involved the design and construction of a new space for deli and retail use on the ground floor of a condominium building. Picnic’s program comprised shopping and casual dining. BUILD designed the surfaces to be durable, modern, and warm, and the existing shell and exposed building systems were left largely untreated, but refinished as texture. Display of products and foods became an important aesthetic factor on the interiors. Color and graphics complement the owners’ cooking and wine pairing skills.

All images by BUILD LLC

Want to know more?

Contact us
Previous
Previous

mkt.

Next
Next

Pro Bono Projects