COMMERCIAL

mkt.

Seattle, Washington

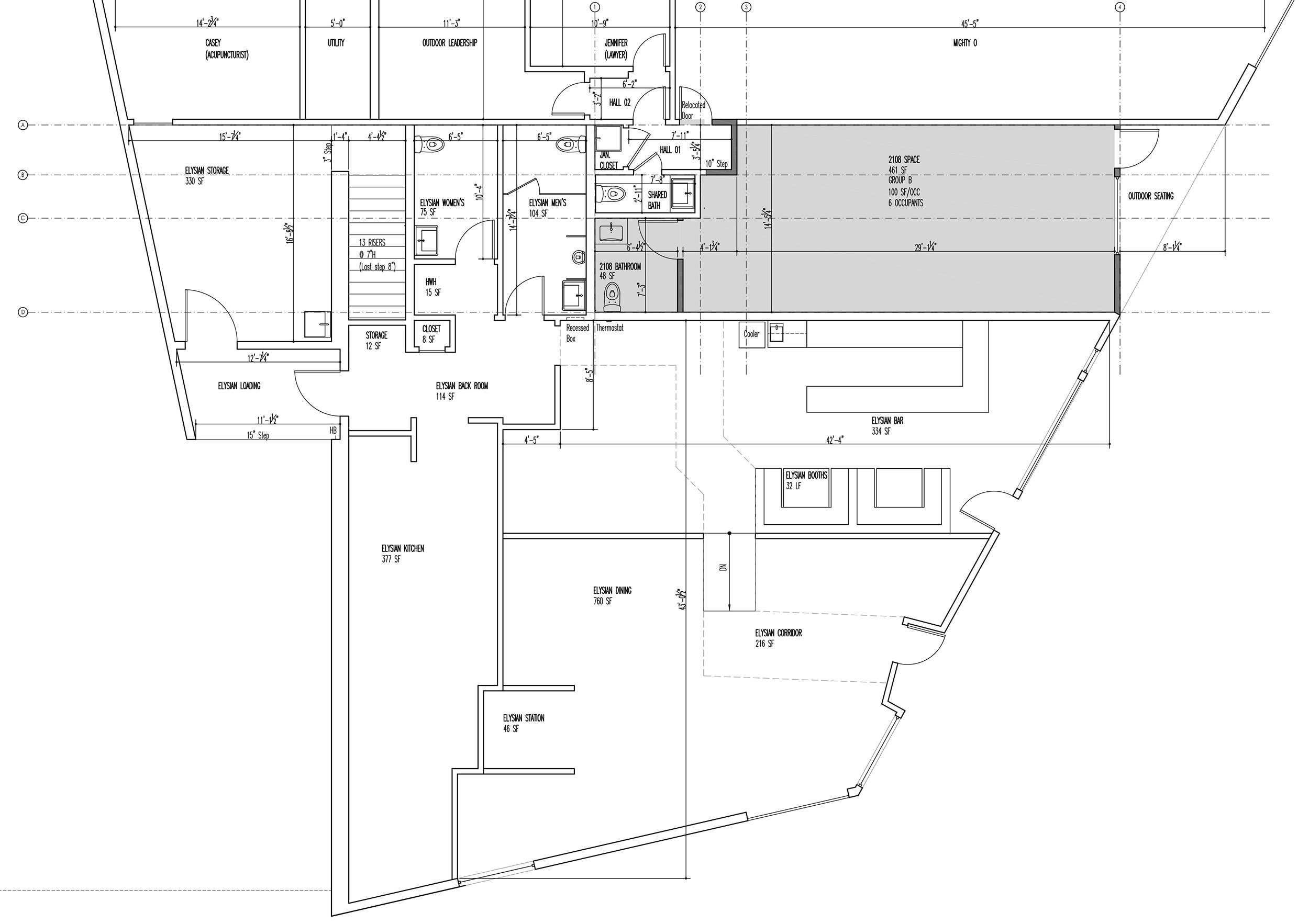
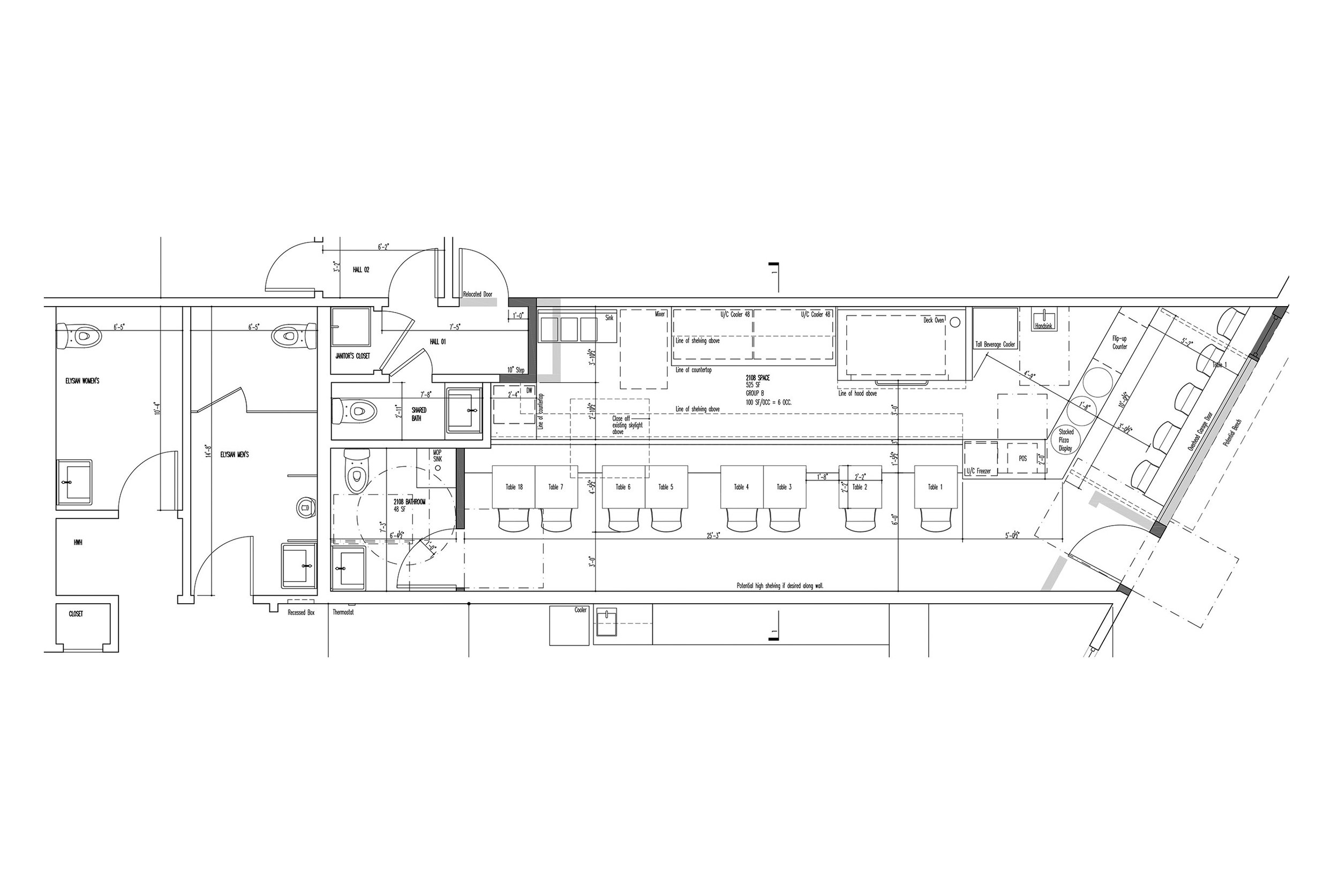
This 600-square-foot Ethan Stowell restaurant, nestled in the historic Keystone Building, a slender urban storefront in Tangletown, was designed to maximize the function of a compact floor plan, while providing an intimate dining experience. The program includes a seating area, chef’s table, bathroom, storefront, and a commercial kitchen that organizes a rigorous appliance package. The aesthetics focus on warm modernism, simple lines, and architecture as the backdrop to food, drink, and the convivial experience. The project was constructed by the exceptional team at Dovetail General Contractors.

All images by BUILD LLC

Want to know more?

Contact us
Previous
Previous

Dentiste

Next
Next

Picnic