Pro Bono Projects
-

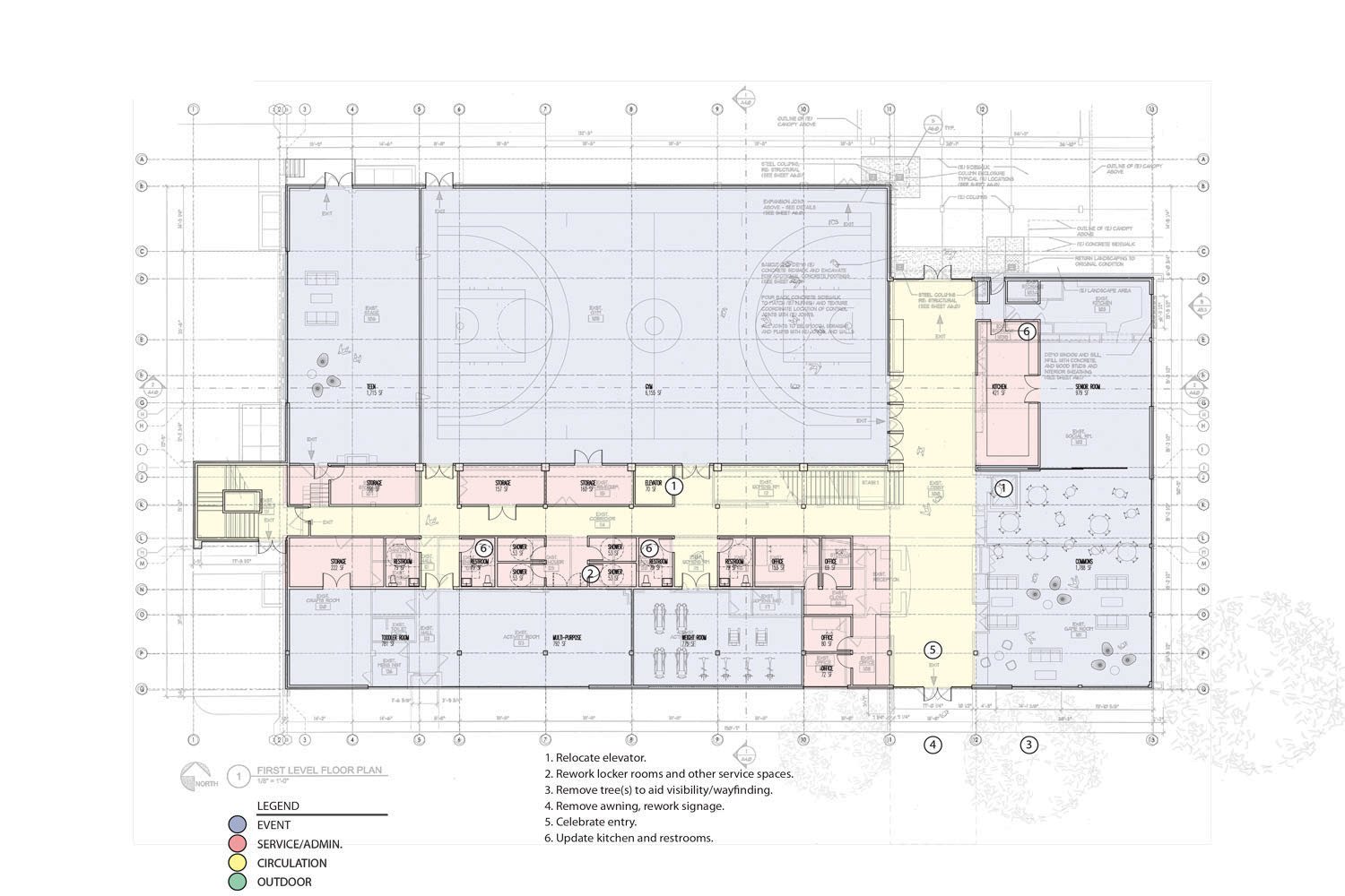
Queen Anne Community Center
BUILD LLC’s efforts comprised research, speculative development studies, and promotional materials to help these fundamental community organizations better serve the broad demographic of their user groups.
-

-

Green Lake Community Center
The master plan proposal for the Green Lake Community Center offers an updated site plan, which locates a new structure within a "band of influence" at Green Lake Park, including the existing tennis and outdoor basketball courts. By aligning with these elements, the Green Lake Community Center provides a more complete, holistic amenity for the neighborhood. Concurrently, prominent paths leading from the adjacent retail hub and library to the lake would be reestablished. Similar to the Queen Anne Community Center, the building is defined by two glowing beacons that bookend various programmatic elements. In contrast with the existing Green Lake structure, the new community center would be reoriented to respond directly to the walking path and lake beyond.
-

-
.jpg)
NorthStar Cycling Clubhouse
BUILD worked with NorthStar to redesign the interior of their Clubhouse, which is a former gas station and car mechanic shop in the Central District. The design concept inserted a new interior within the existing shop, providing flexible space for bike repair and community gatherings. The design also incorporated locker rooms and bike storage.
-
.jpg)
-

Tilth Alliance Youth Garden Works
BUILD LLC collaborated with TAYGW on their University District facilities, including the design and construction of a garden shelter for the University District farm.
-

-

Coyote Central Master Plan & Workshop
In an effort to help forward Coyote Central’s mission, BUILD LLC designed and permitted a workshop addition to the organization’s facilities.
-

-

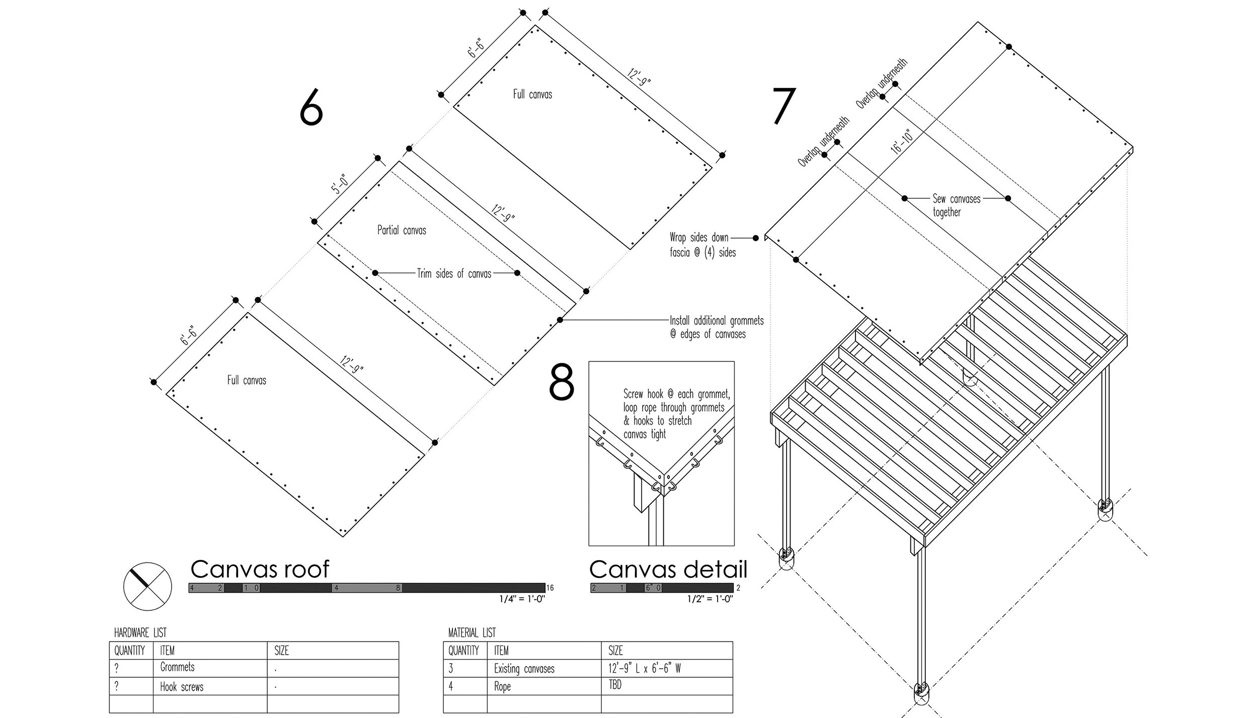
Bike Works
BUILD LLC worked with Bike Works to reimagine a covered outdoor storage area into a flexible space for learning, staff interaction, and community gathering. The roof canopy was reenvisioned to increase gathering space and maintain natural daylight; stadium seating was added to the perimeter, and strategic storage was incorporated to support the adjacent bike shop.
-












