RESIDENTIAL

Massena Residence

Bellevue, Washington

Link to press here

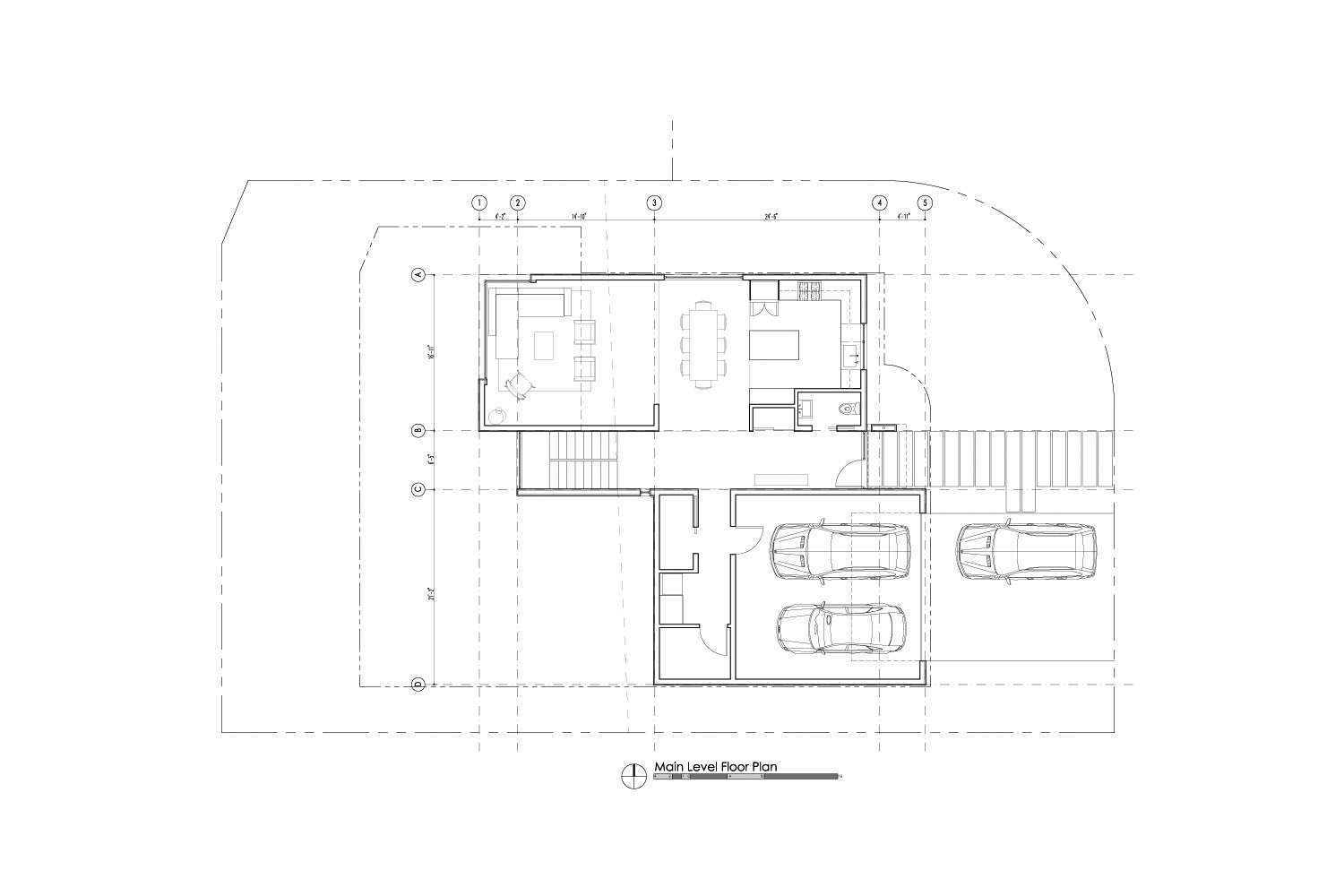
This two-storey home was built on an empty lot in Bellevue, WA. The floor plan is efficient and effective, and includes 2,400-sf of conditioned area, and a two car garage. Inside, the open floor plan allows for smaller, smarter spaces, and the envelope is a simple and elegant translation of the interior functions. The cantilevered living room hovers adjacent to a greenbelt, giving the interior common areas a tree-house-like feel. An open tread stairway is a sculptural feature of the home, and allows unique views to the tree canopy beyond. Floor-to-ceiling windows in the bedrooms allow generous amounts of natural daylight and fresh air.

All images by BUILD LLC

Want to know more?

Contact us
Previous
Previous

Magnolia Residence

Next
Next

Yamhill Residence