RESIDENTIAL

Yamhill Residence

Yamhill, Oregon

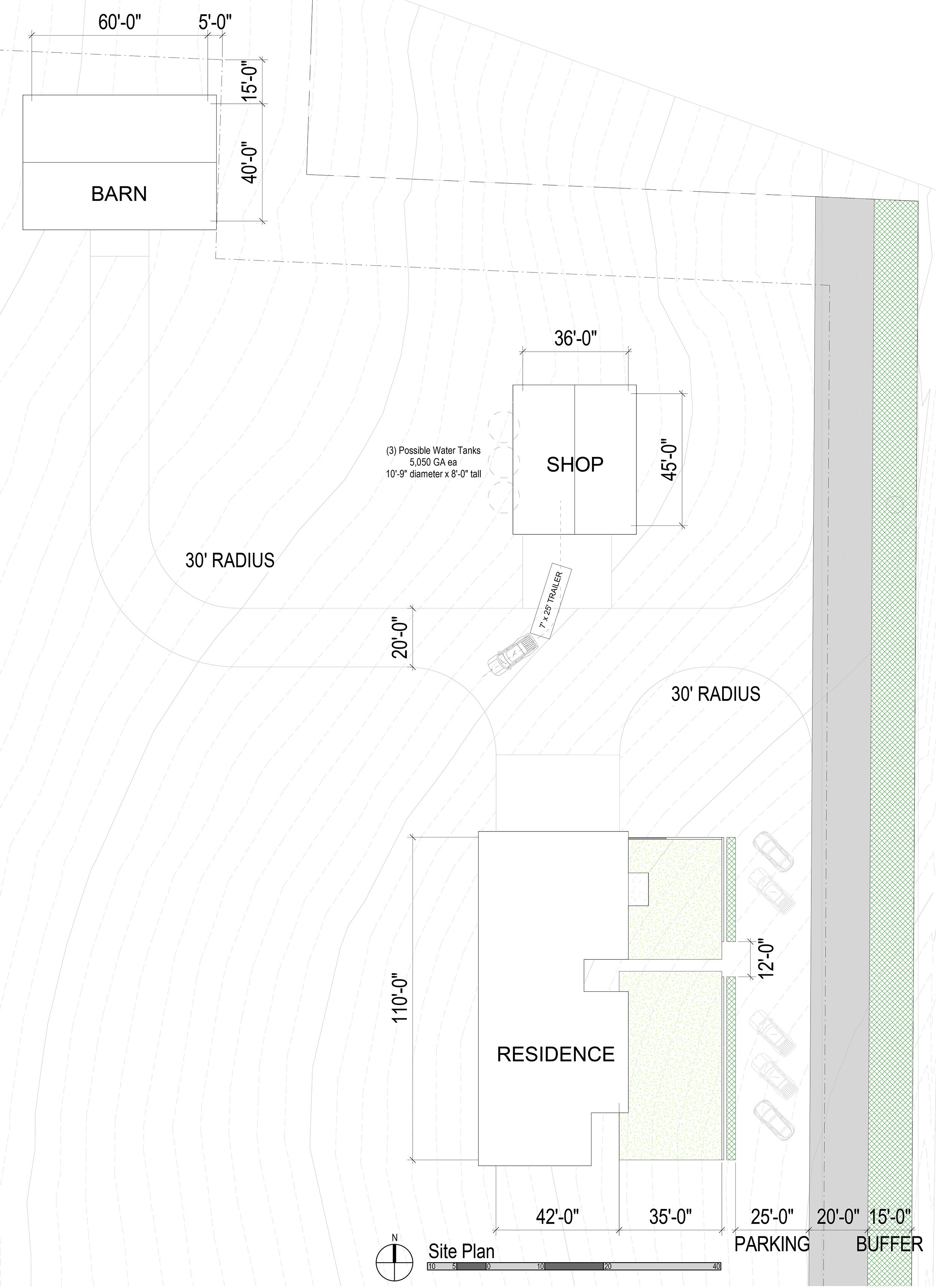
The rural location of this 2-level residence takes advantage of sweeping views of the wine-growing countryside and an abundance of southern and western natural light.  Positioning the structure within the sloping grade allows for common areas at the top floor for views and adjacency to east facing outdoor spaces, while lower-level bedrooms are kept cooler and darker.  The long, linear lines of the architecture keep the structure close to the ground plane and allow for generous floorplates.  Site planning includes a barn and shop space, as well as landscaping to maintain privacy with neighbors.

All images by BUILD LLC

Want to know more?

Contact us
Previous
Previous

Massena Residence

Next
Next

Case Study House 2019