RESIDENTIAL

Magnolia Residence

Seattle, Washington

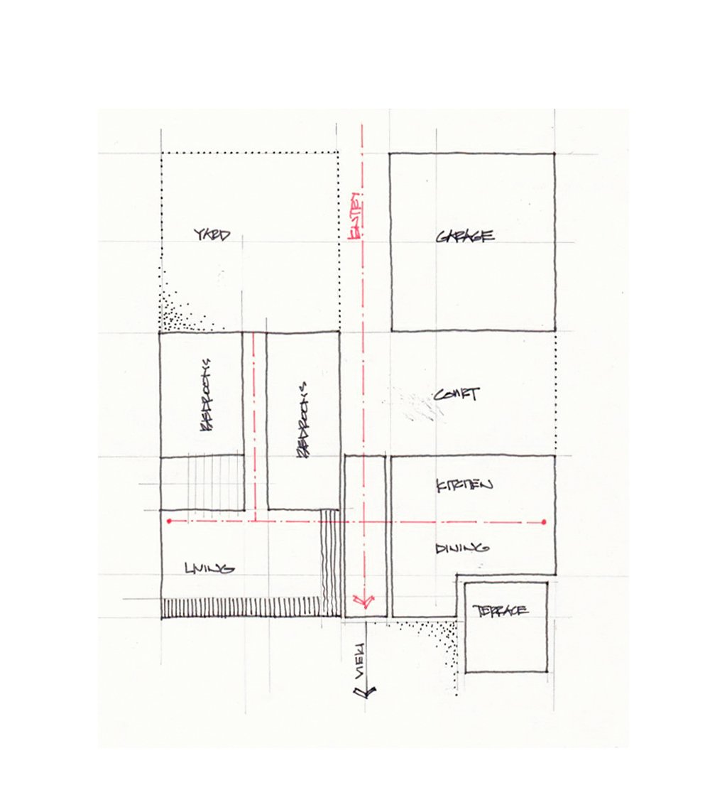
An existing mid-century modern home along Seattle’s renowned Magnolia Boulevard has been updated for the 21st century. A new second level master suite takes advantage of a spectacular view, while the main floor common areas accommodate a lifestyle of entertaining, cooking, and enjoying the scenery. Exposed beams and cedar ceilings provide visual warmth, and attenuated rooflines maintain a timeless quality to the elevations. A covered entry integrates with an interior courtyard to create a sequence of experiences leading up to the front door of the residence.

All images by BUILD LLC

Want to know more?

Contact us
Previous
Previous

Davidson Residence

Next
Next

Massena Residence