RESIDENTIAL

Davidson Residence

Magnolia, Seattle, Washington

Link to press here and here

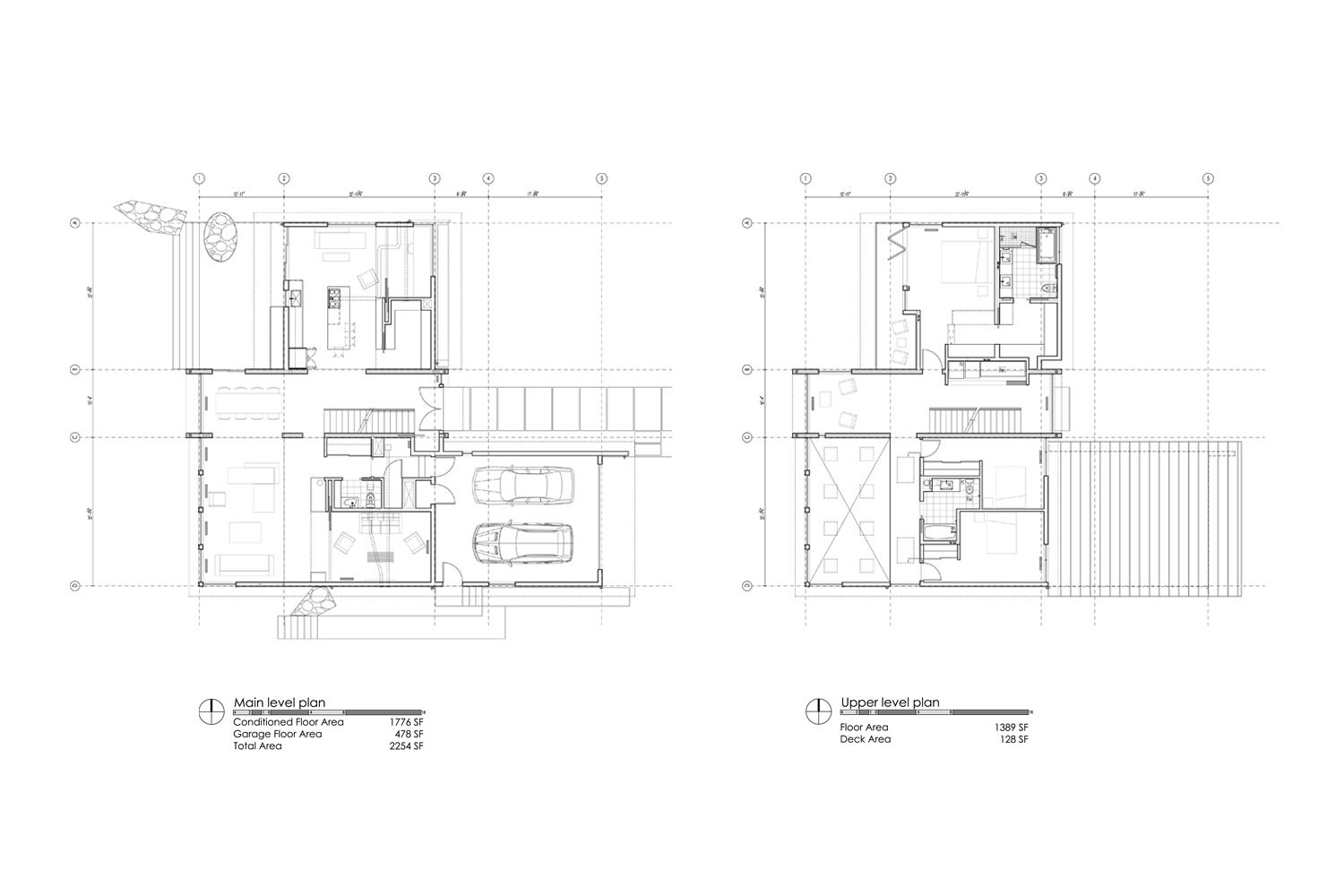
The Davidson Residence, located in Seattle’s Magnolia neighborhood, expands on a strategy of framing views, filtering light, and creating provocative and timeless forms. This home’s palette of materials, hardware, and fixtures pairs tried and true components with fresh alternatives. Collectively, these elements comprise a home that meets the owners’ request for a unique and personal residence, while maintaining timeless value.

All images by BUILD LLC

“You have to be able to trust that whatever the design can be built for the cost you are expecting; I chose the design/build model because it aligns this tension, and I chose BUILD LLC because of their demonstrated success in building amazing, liveable homes on time and on budget.”

—Mike Davidson

Want to know more?

Contact us
Previous
Previous

Concord Penthouse

Next
Next

Magnolia Residence