COMMERCIAL

Society Consulting

Bellevue, Washington

Link to press here and here

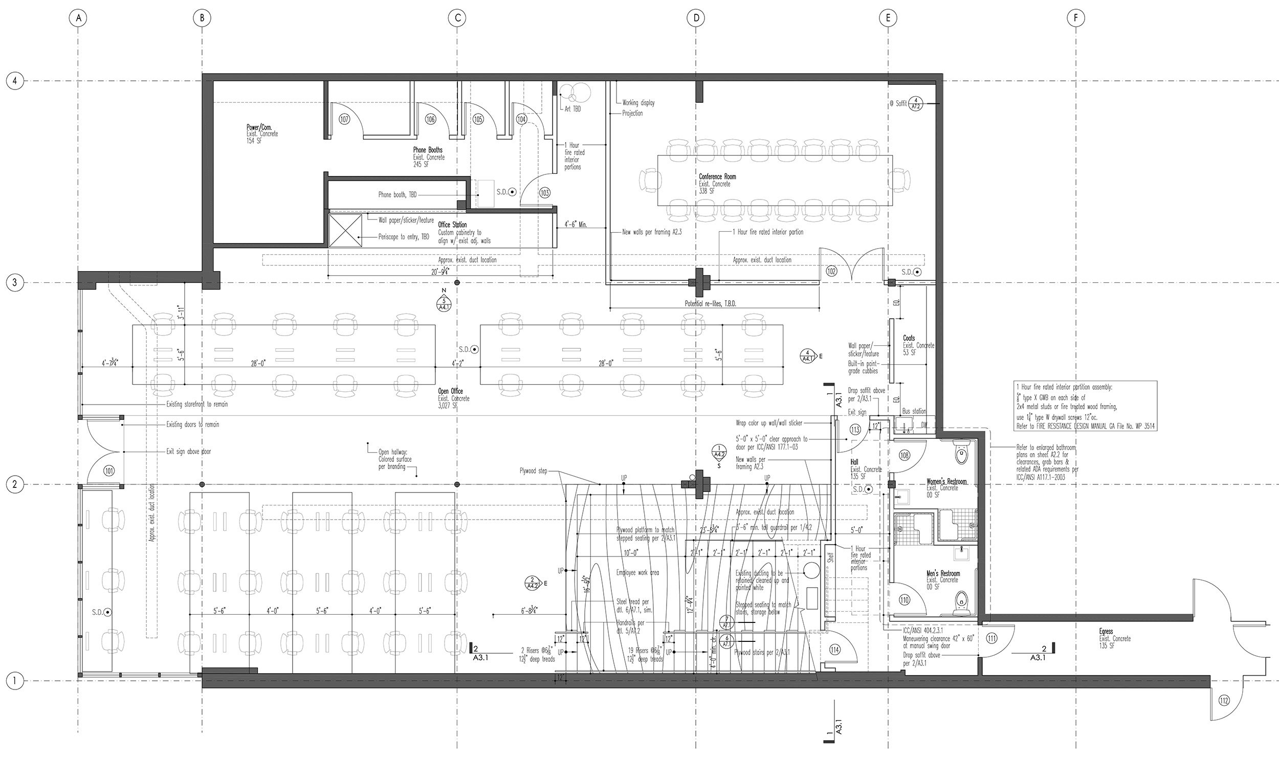
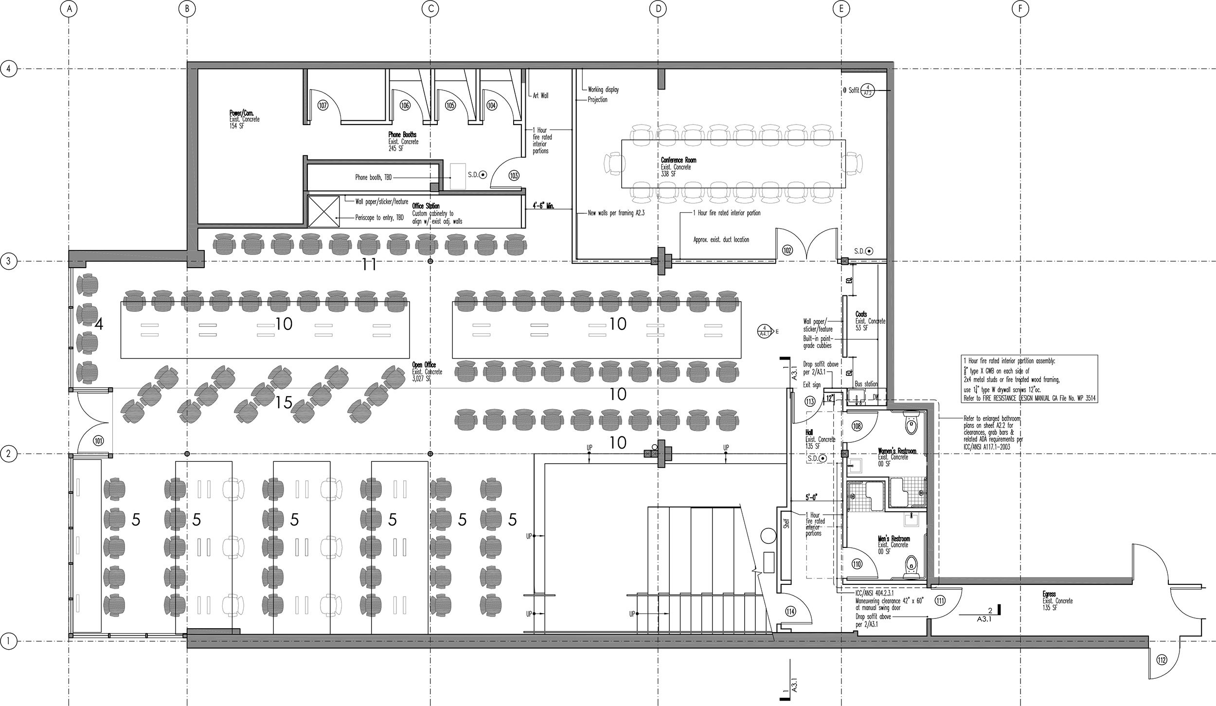
This 4,200-square-foot tenant improvement supplemented the existing Society Consulting offices with additional work stations, conference space, accessible bathrooms, and a set of bleachers for working, meeting, and playing. The interiors package included full height decals, interactive walls, tiered lounges, and furnishings worthy of a forward-thinking tech operation.

All images by BUILD LLC

Want to know more?

Contact us
Previous
Previous

Chase Jarvis Photography

Next
Next

Mercer Education