COMMERCIAL

Mercer Education

Bellevue, Washington

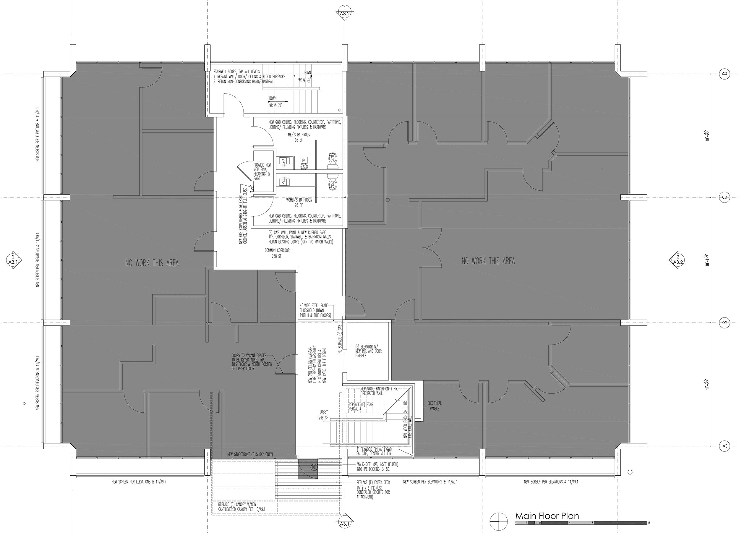
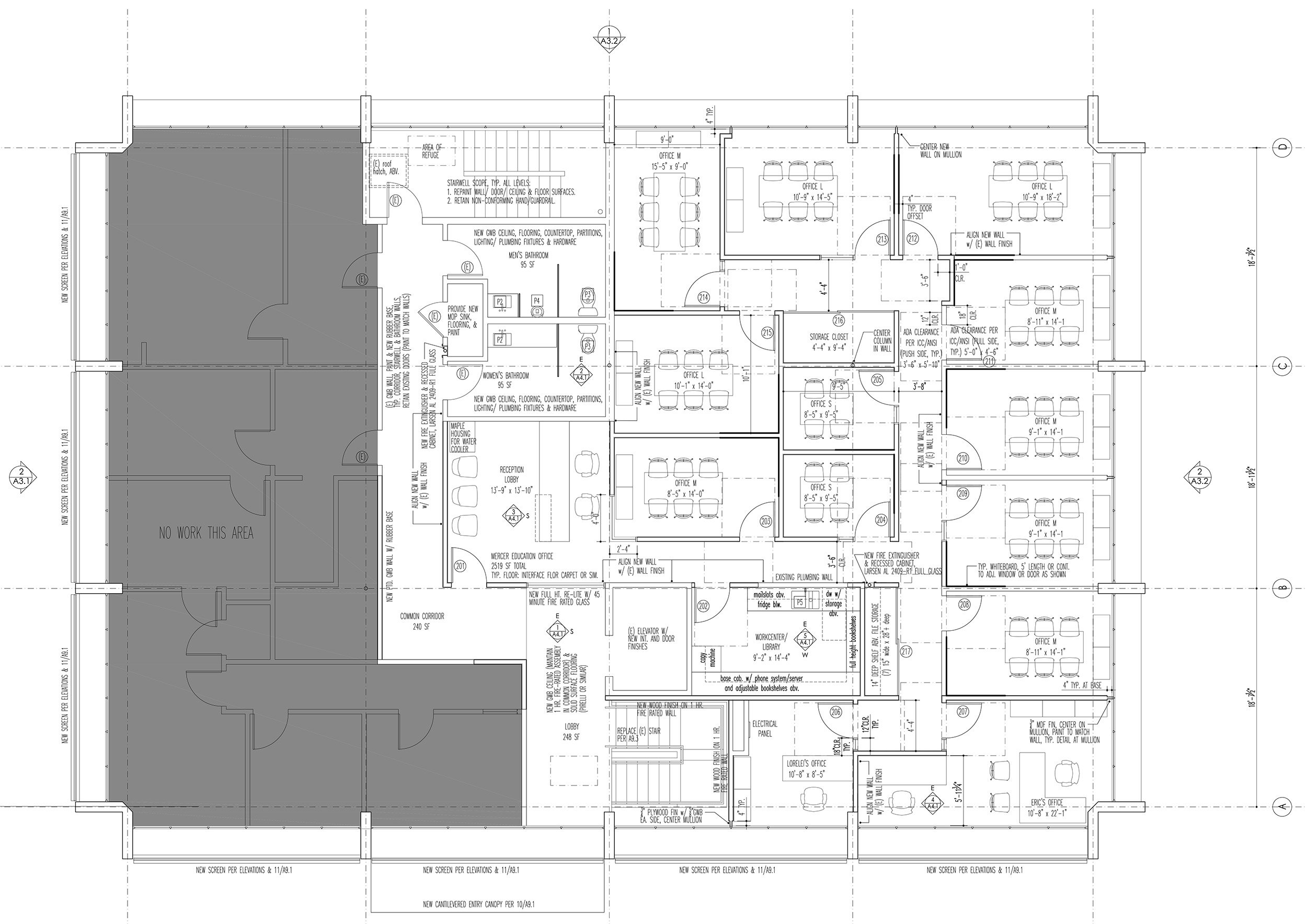
BUILD was engaged to substantially redesign the shell and interior of an existing and outdated 1979 office building for a premier private school in the heart of Bellevue, WA. The improvements consisted of redesigning the façade and entry, and better integrating the renovated structure with the landscape. For the interior, the project consisted of a full renovation, including MEPF upgrades, space programming, interior design, and furnishings. The program called for a series of 10 new classrooms, administrative offices, efficient storage, and a small service kitchen.

Photography by BUILD LLC, Art Grice

Want to know more?

Contact us
Previous
Previous

Society Consulting

Next
Next

Dentiste