RESIDENTIAL

Magnolia Bluff Residences

Seattle, Washington

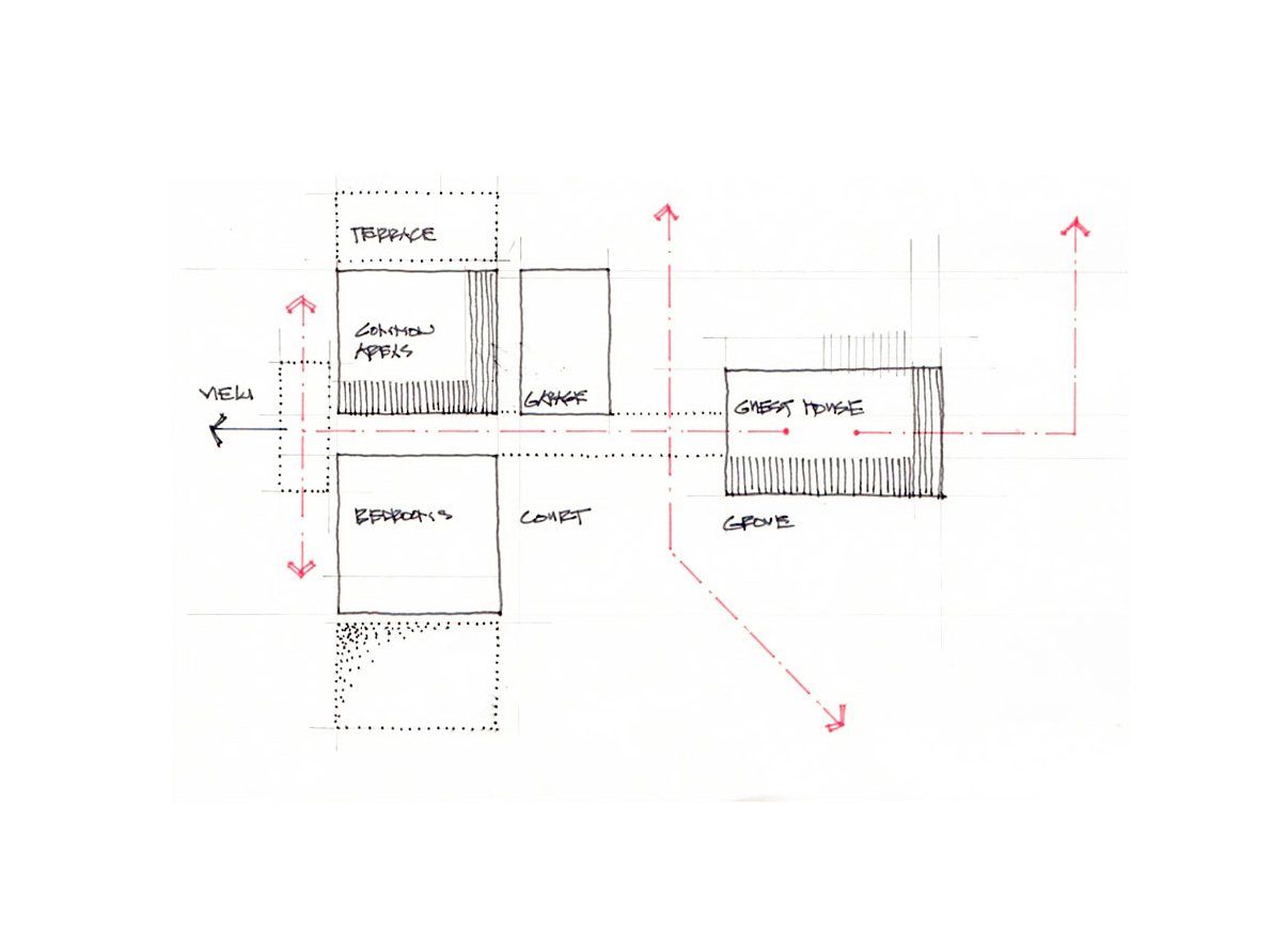
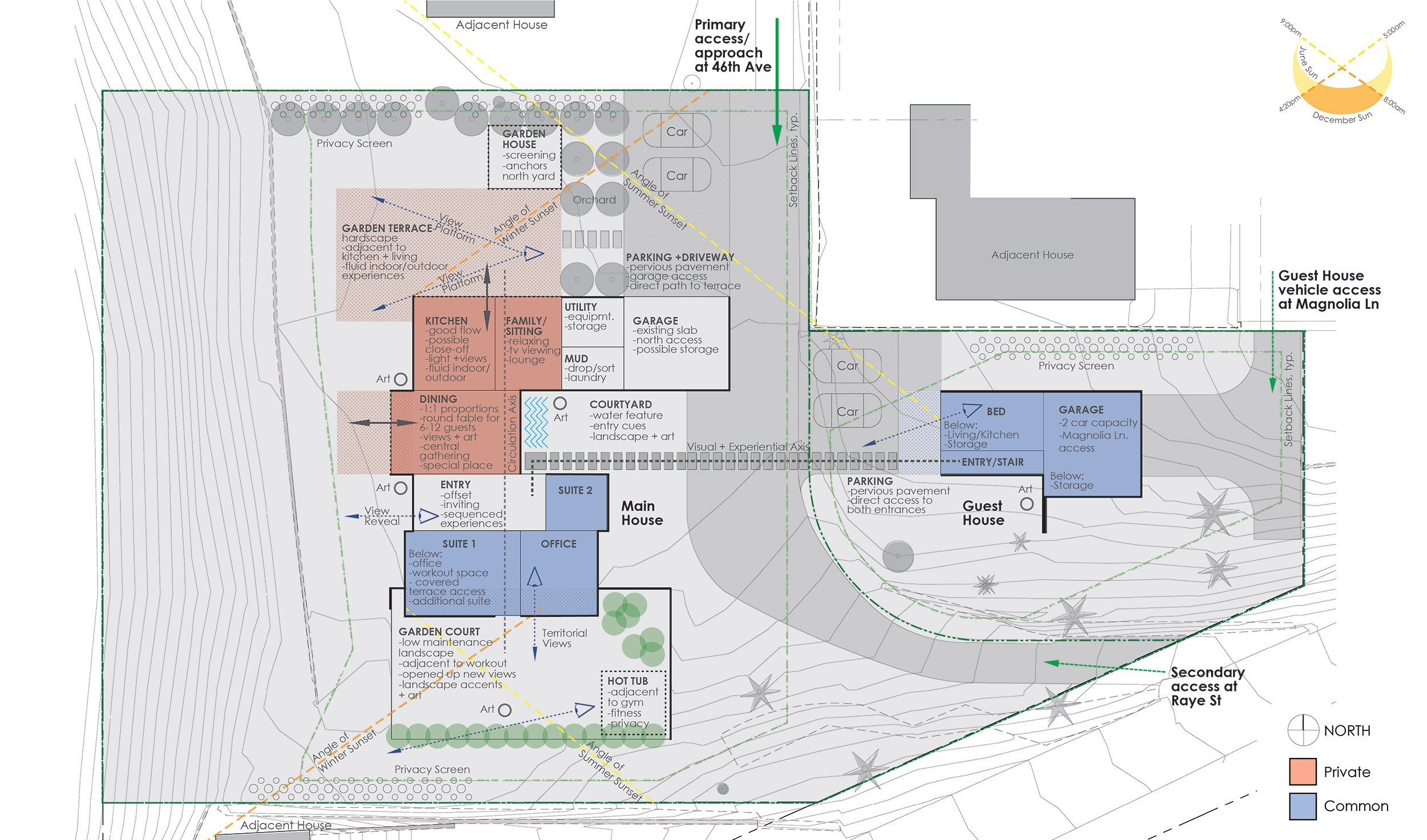
Perched on an acre of a hillside overlooking the Puget Sound, the Olympic Mountains, and Bainbridge Island, this project optimizes a unique site and adjacent parcel to create a modern residence and guest house. An existing foundation was reused to reduce earthwork and to tread lightly on the land. The design focuses on formal geometries, functional entertaining spaces, room to feature art, and deliberate indoor-outdoor relationships. A separate guest house was carefully sited on a blank parcel to the east, borrowing design cues from the main house, and capturing new views from its elevated topography.

Images by BUILD LLC, aerial images by Rory Savatgy

“Our experience with BUILD began shortly after we purchased a property in Seattle’s Magnolia neighborhood. They listened to our desires and needs for the project, and came up with an elegant design that reflected the modern look and feel we wanted. We have been very pleased with our Seattle home as designed and built by BUILD.”

— Rieschels

Want to know more?

Contact us
Previous
Previous

Beaux Arts Village

Next
Next

Harrison Street Residence