MULTI-FAMILY

Fremont View Apartments

Seattle, Washington

Link to press here

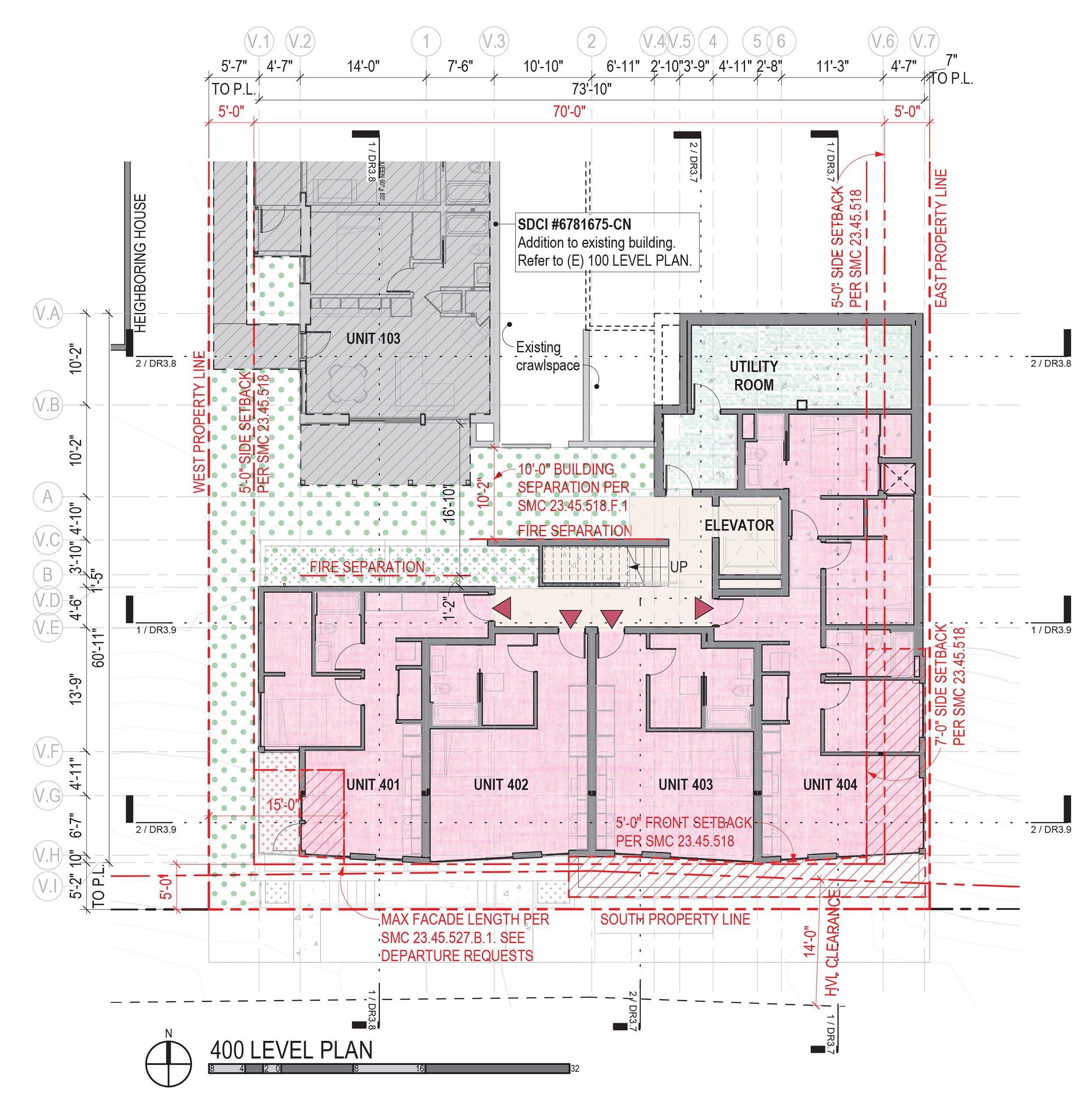
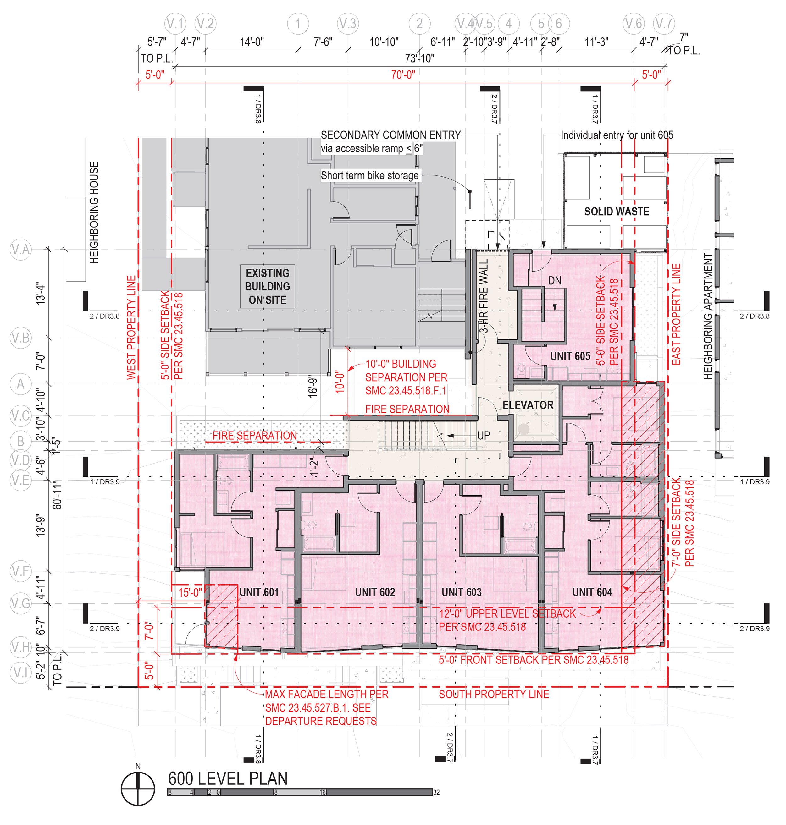
Part of the Fremont View Campus in Seattle’s growing Fremont neighborhood, this project consists of a three unit addition and seismic upgrades to a mid-century apartment building, and a new eight-story building consisting of 29 apartment homes. Because the project site is on a significant slope that was created during the original Seattle street construction, we have employed a terraced design approach to take advantage of the unique terrain, and to integrate the two buildings. Extended information gathering and preliminary design phases allowed us to work through the unique utility and adjacent street complexities, building access, and impacts to adjacent neighbors. The project was completed in October of 2024

Constructed by Stringham Construction

All images by BUILD LLC.

4.5x


increase in density

32


residential units

11


Complete permits involved

As a newer multifamily housing developer, working with BUILD has been an absolute win. They offered fair pricing and consistent guidance, paying careful attention to both engineering and aesthetics and integrating the two seamlessly throughout our project. They were incredibly patient with our learning curve, thoughtfully addressing every detail and guiding us through each step. Their follow-through was remarkable, making the process both educational and illuminating. The end result was exceptional—a project we are proud of because it enhances the community and provides well-designed, thoughtful housing for our residents. For anyone considering BUILD as their project architect, I'd be happy to share more about our experience, which has been and continues to be exceptional.”

— Edward Krigsman, Cliffside Properties

“BUILD’s attention to detail and innovative approach to design is impressive. Throughout the entire process, communication was seamless and deadlines consistently met. The team's professionalism and commitment to excellence were evident in every aspect of our project. They closely collaborated with us, ensuring that our aspirations were not only met, but exceeded.”

— John Links, Owner’s Representative

Want to know more?

Contact us
Previous
Previous

The Orchard Master Plan

Next
Next

Juniper Flats