COMMERCIAL • INSTITUTIONAL

CreativeLIVE SF Education

San Francisco, California

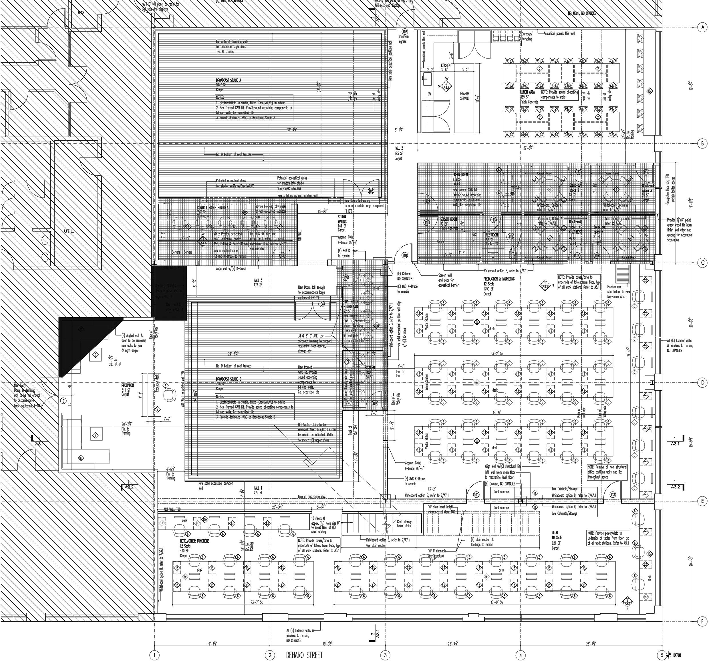
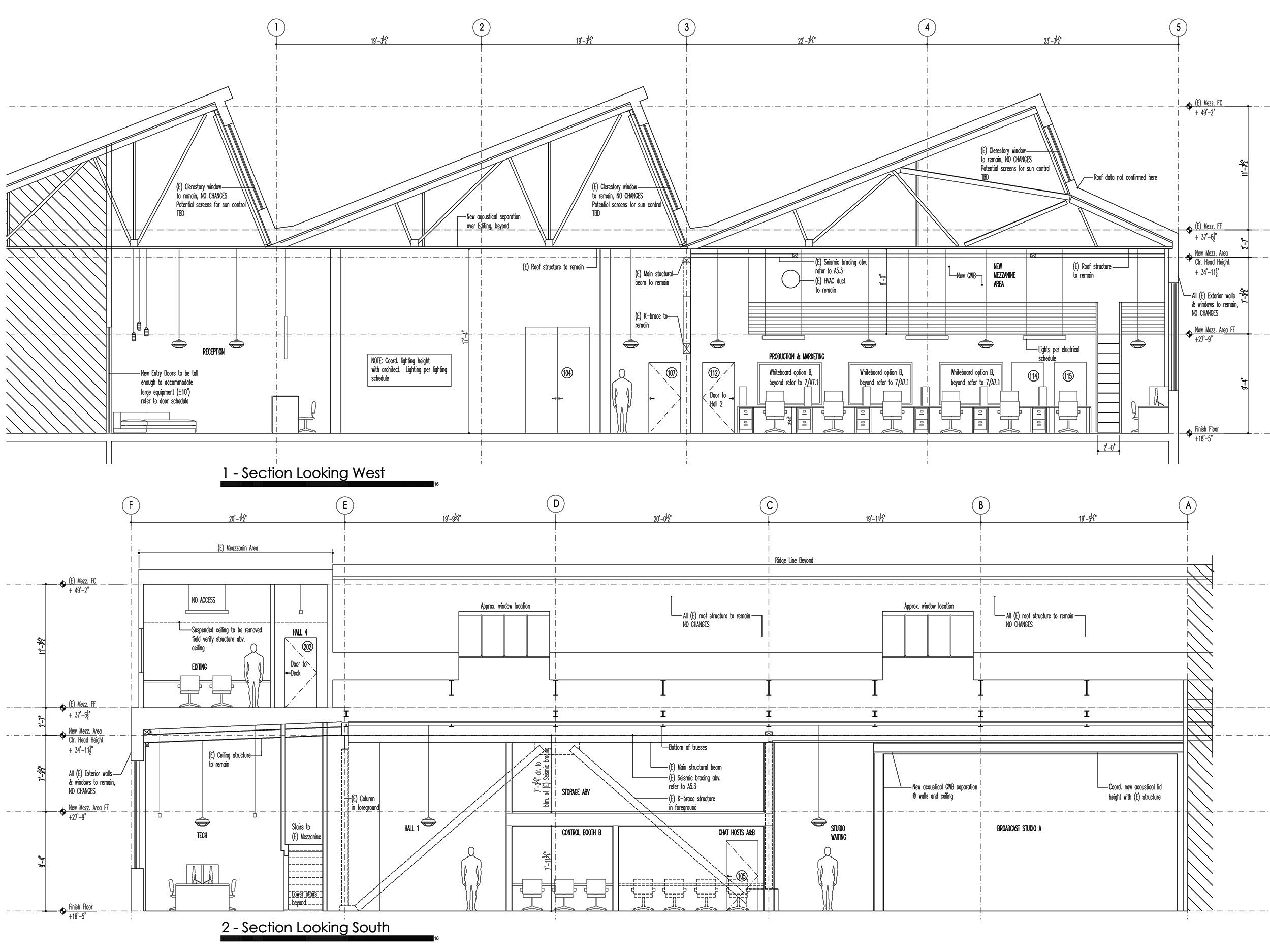
In addition to the (4) separate CreativeLIVE facility projects in Seattle, BUILD was tasked with designing a tenant improvement for a 10,000-square-foot industrial brick building once occupied by the Western Can Company in San Francisco’s lower Potrero Hill neighborhood. The design features two broadcasting studios, accompanying sound booths, large workrooms, a kitchen, lunch room, break-out rooms, and all of the other facilities required to run an interactive social classroom of the 21st century. Interiors benefit from a sophisticated palette of textures and materials, and large walls of original glass windows and open frame steel trusses positively impact the overall feel of the spaces. BUILD was the design architect on this project, and the talented folks at Zack | de Vito were the architects of record.

All images by BUILD LLC

“It’s easy to notice the savvy, cost-effective design, use of great materials, and excellent taste that are hallmarks to every BUILD LLC project.  The firm is honest, transparent, smart, and kind. They ooze talent, and their timelines and budgets are brilliantly managed.  It’s thought to be impossible to find all these attributes in a single firm, but this is exactly what sets BUILD LLC apart from all the rest.”

— Chase Jarvis, Founder, CEO

Want to know more?

Contact us
Previous
Previous

CreativeLIVE SEA Education

Next
Next

Chase Jarvis Photography