MULTI-FAMILY

Burwell Apartments

Bremerton, Washington

Link to press here

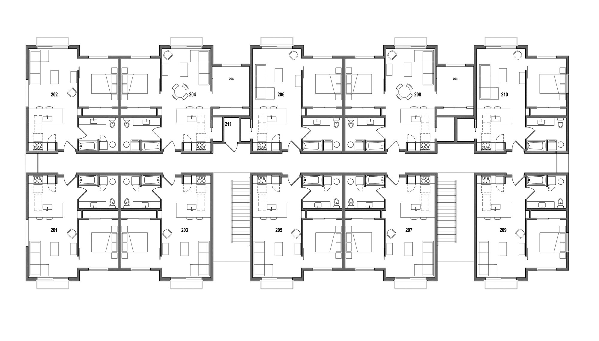
The Burwell Apartments are located in Bremerton, WA, a ferry ride from downtown Seattle on the Kitsap Peninsula. This new, 20,000-sf, 25-unit apartment building includes covered and open parking. The design follows a rigorous logic of varying unit types to offer flexibility and optimize the building footprint. The program incorporates accessible ground floor units that open to terraces, and upper level units that capture views of the harbor and Puget Sound. The massing emphasizes articulation of form and geometrical rhythm. The project was completed in the fall of 2022.

All images by BUILD LLC

10x


increase in density

25


residential units

“We really enjoyed partnering with BUILD. Their design sensibilities and deep construction knowledge was invaluable. Their thorough understanding of the ever-changing zoning and building codes moved our project quickly through the City. BUILD also provided remarkable interior services.”

— Brian Fyall, Lorax Partners LLC

Want to know more?

Contact us
Previous
Previous

Clearpine Mixed-Use Building

Next
Next

602 Flats